Cylinder sleeve removal / replacement
- Youngblood
-
- Offline
- Junior Member
-
- Posts: 21
- Thanks: 4
Re: Cylinder sleeve removal / replacement
2 years 4 months ago - 2 years 4 months ago
From Gert Roewer: I machined my own liners from centrifugally cast hollow bar. 67mm is about the max you can go by re-sleeving concentrically with the original bores. Any bigger and you have to offset the bores on cylinders # 1,3,4 and 6. I did this by 1.5mm on those cylinders to enable sleeves with a 70mm bore, using modified Honda VFR 750 pistons. Also had to enlarge the small ends of the rods to 17mm for this. It’s a big job.
Just a thought is there any reason why you couldn't have a straight liner o-ringed at the top and stepped at the bottom. Bore the cases to suit? is there room to bore the cases. Will be getting my spare barrels in a few weeks so for now I researching. and see what other have done or not.
Just a thought is there any reason why you couldn't have a straight liner o-ringed at the top and stepped at the bottom. Bore the cases to suit? is there room to bore the cases. Will be getting my spare barrels in a few weeks so for now I researching. and see what other have done or not.
Last edit: 2 years 4 months ago by Youngblood.
The following user(s) said Thank You: Kawboy
Please Log in or Create an account to join the conversation.
- Kawboy
-
Topic Author
- Offline
- Sustaining Member
-
- Posts: 3227
- Thanks: 1191
Re: Cylinder sleeve removal / replacement
2 years 4 months ago - 2 years 4 months agoAwesome info gathering Youngblood. Don't know where you found it but greatly appreciated.From Gert Roewer: I machined my own liners from centrifugally cast hollow bar. 67mm is about the max you can go by re-sleeving concentrically with the original bores. Any bigger and you have to offset the bores on cylinders # 1,3,4 and 6. I did this by 1.5mm on those cylinders to enable sleeves with a 70mm bore, using modified Honda VFR 750 pistons. Also had to enlarge the small ends of the rods to 17mm for this. It’s a big job.
Just a thought is there any reason why you couldn't have a straight liner o-ringed at the top and stepped at the bottom. Bore the cases to suit? is there room to bore the cases. Will be getting my spare barrels in a few weeks so for now I researching. and see what other have done or not.
I had considered the offset idea but it loads up the wristpin on the offset and I don't like it.
Then Gert opted to open up the small end of the conrod from 15mm to 17mm to fit the VFR750 wristpins. I think I would have bushed the pistons from 17mm to 15mm and gone with the 15mm wristpins.
At 67mm bore the cylinder wall gets REALLY thin. The upper o ring land can be pushed out from 2.773" to 2.850" and no o ring. The bore would be 67mm (2.637"). That leaves a wall thickness of .106"
66mm (2.598") is doable with the centrifugally spun ductile iron sleeves. That leaves a wall thickness of .126" Just waiting to hear back from L.A. Sleeve.
As far as the lower case , yes there's a 5mm wide web down there to work with and to bore it and remove the o ring grooves you need to bore out 2.5 - 3mm diameter and it's reasonable.
if you use the stock sleeves and bore out for 64mm, you're left with a wall thickness of .050" So if you add 2.5mm to the sleeve at the bottom and go with a 64mm piston, you're still left with a .050" wall at the bottom.
Lots to consider.
Last edit: 2 years 4 months ago by Kawboy.
Please Log in or Create an account to join the conversation.
- Kawboy
-
Topic Author
- Offline
- Sustaining Member
-
- Posts: 3227
- Thanks: 1191
Re: Cylinder sleeve removal / replacement
2 years 4 months ago
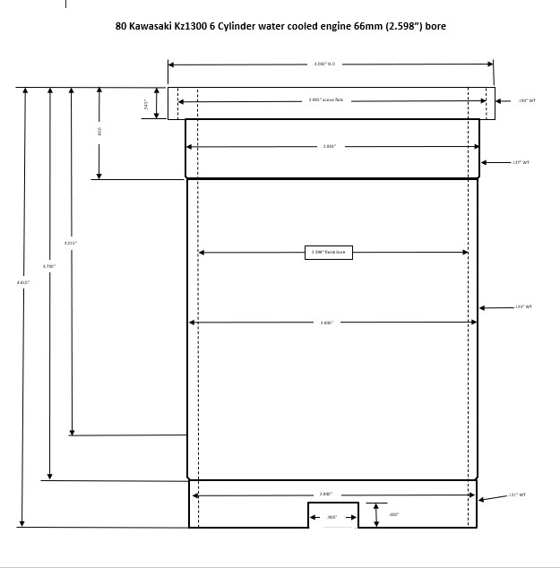
Here's where I'm at.
This is a drawing I created of the stock cylinder sleeve.
This is a drawing of a proposed sleeve for a 66mm big bore. It would require boring out the cylinder block top and bottom. No o ring groove on the top which means the head gasket is now the sealing point between the water jacket, the cylinder block and the cylinder head. This is a similar practice to what happens when Darton Wet Sleeves are installed. I still need to add o ring grooves (2) to the bottom of the sleeve for sealing the sleeve to the cylinder block. Just need to check and see if I can do this with .070" Nitrile o rings.
Just thought I'd put this out there for thoughts. Gert Roewer has done 67mm big bores (10 of them) and even a 70mm big bore using offset cylinders but that's too wild for me. I now have 8 KZ750 pistons which have cost me $35 CDN so I'm exploring thinking that I could have bought 64mm Cruzin Image pistons at $250 USD ($350 CDN) or invest in custom cylinder liners . 64mm pistons get you to 1370 cc. 66 mm get you to 1457 cc's
This is a drawing I created of the stock cylinder sleeve.
This is a drawing of a proposed sleeve for a 66mm big bore. It would require boring out the cylinder block top and bottom. No o ring groove on the top which means the head gasket is now the sealing point between the water jacket, the cylinder block and the cylinder head. This is a similar practice to what happens when Darton Wet Sleeves are installed. I still need to add o ring grooves (2) to the bottom of the sleeve for sealing the sleeve to the cylinder block. Just need to check and see if I can do this with .070" Nitrile o rings.
Just thought I'd put this out there for thoughts. Gert Roewer has done 67mm big bores (10 of them) and even a 70mm big bore using offset cylinders but that's too wild for me. I now have 8 KZ750 pistons which have cost me $35 CDN so I'm exploring thinking that I could have bought 64mm Cruzin Image pistons at $250 USD ($350 CDN) or invest in custom cylinder liners . 64mm pistons get you to 1370 cc. 66 mm get you to 1457 cc's
Please Log in or Create an account to join the conversation.
- Youngblood
-
- Offline
- Junior Member
-
- Posts: 21
- Thanks: 4
Re: Cylinder sleeve removal / replacement
2 years 4 months ago
Reading this about the piston pin I've been told that it's 16mm not 15mm ?? I don't have a 1300 piston to hand yet.
Please Log in or Create an account to join the conversation.
- Kawboy
-
Topic Author
- Offline
- Sustaining Member
-
- Posts: 3227
- Thanks: 1191
Re: Cylinder sleeve removal / replacement
2 years 4 months ago - 2 years 4 months agoThe KZ650 pistons are identical to the KZ1300 pistons in all respects, including bore diameter. (62mm)Reading this about the piston pin I've been told that it's 16mm not 15mm ?? I don't have a 1300 piston to hand yet.
The KZ750 spectre pistons are identical in all respects except are 66mm in diameter. Interesting note that there are an addition 6 oil drain back holes below the oil scraper ring plus the same 6 holes behind the oil scraper ring
All 3 pistons, 62mm KZ1300, the KZ650 and the KZ750 pistons all use the 15mm wrist pin.
You can see in the picture where I used 2 wrist pins and inserted in the 3 pistons in order to compare the crowns of the 3 pistons for height and curvature. The valve pockets are really close and I suspect the only way to determine use of a different piston would be to assemble the engine and do a clay impression between the valves and the piston crown to determine if some minor machining of the piston crown needed to be done
Last edit: 2 years 4 months ago by Kawboy.
Please Log in or Create an account to join the conversation.
- Youngblood
-
- Offline
- Junior Member
-
- Posts: 21
- Thanks: 4
Re: Cylinder sleeve removal / replacement
2 years 4 months ago
This is great stuff, 63mm is fine 64mm pistons bored on standard liners leave a very thin wall at the bottom of the bore, and 66mm+1mm (750 +1mm) is the largest you can go with standard rods, I was looking at using Kawasaki 750 turbo pistons they are 66mm + and 69mm but they are 16mm piston pins? so I'd need new rods? have new pistons forged or bush the pistons. So if you go 66-67mm pistons you need new liners. If you go 69-70mm you need rods to match your pistons and stagger the cylinders in the barrel by some 1.25mm maybe 1.50mm loads more work with the liners and cases. Thank you
And of course another question does the piston travel using the whole of the Bore/Liner top to bottom or is there a part not used at the bottom??
And of course another question does the piston travel using the whole of the Bore/Liner top to bottom or is there a part not used at the bottom??
Please Log in or Create an account to join the conversation.
Moderators: scotch
Time to create page: 0.180 seconds
